Vendu ! Bel appartement 2 chambres avec place de parking

Vue d'ensemble

Prix: 179 000 €
Type: Appartement
Lieu: Soumagne
Chambres: 2
Salles de bain: 1
Superficie: 85m2
PEB: PEB b

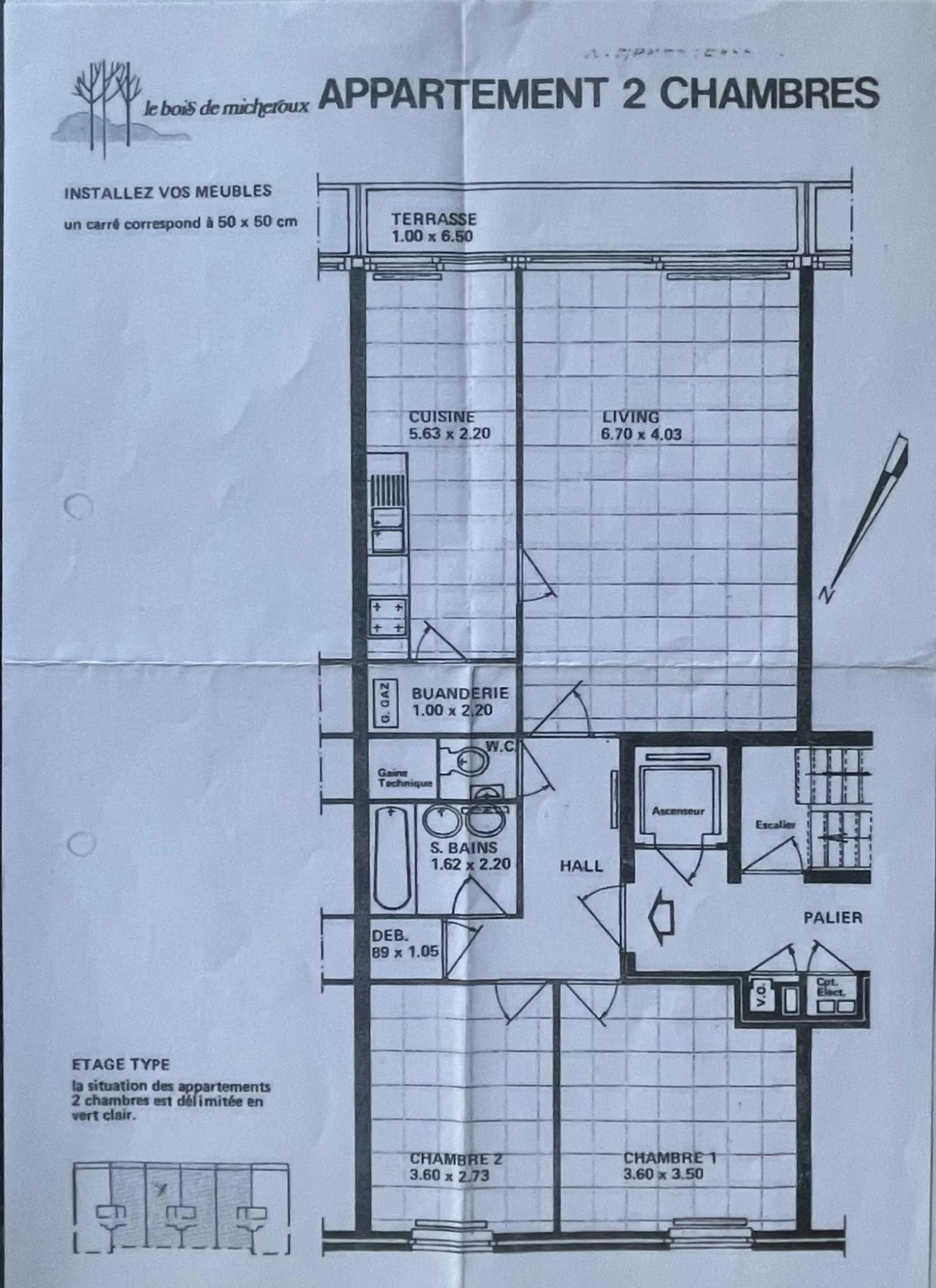
Vendu sans condition suspensive! Faire offre à partir de 179.000 € (sous réserve d’acceptation du propriétaire). Charmant appartement situé au 2ème étage d’une résidence calme de 10 unités à Soumagne avec place de parking privative et vue dégagée (superficie totale d’après PEB+/- 87m²). A deux pas des supermarchés et des surfaces commerciales, il se compose comme suit : Hall d’entrée, toilette indépendante, buanderie, séjour lumineux (grandes baies vitrées), cuisine équipée (taque vitro, hotte charbon, four, frigo/congélateur), deux chambres (10, 12 m²), salle de douche (douche et 2 lavabos), terrasse, cave, place de parking. De plus, cette propriété propose un espace dédié dans les combles pour le séchage des vêtements. PEB : B, E spéc : 121 kWh/m².an, E totale : 10.580 kWh/an, n°20240308011499. Chauffage central gaz, double vitrage et châssis aluminium. R.C. : 875 €, Charges communes : 100€/mois (entretien des communs, électricité des communs,..). Compteurs individuels. Agréable situation

Équipement général

Air conditionné
Alarme
Placard
Ascenseur
Balcon
Chauffage
Electro
Place de parking
Gaz naturel
Jardin
Blanchisserie
Lumière
Meublé
Piscine
Porte blindée
Terrasse
Cagibi
Vidéo intercom

Carte